M.L.A (Master Locksmith Association)
T.O'Connor (Security Services) LtdT.O'Connor (Security Services) Ltd 
 T.O'Connor (Security Services) Ltd 
Raising the standard of the security industry 
  
Rosengrens RSD Grade VII Strongroom Door with Stainless Steel FinishRosengrens Safes

 

Rosengrens RSD VII Strongroom Door

Rosengrens Strongroom Door, grade VII tested and approved by the German VdS Test Institute in accordance with the CEN/Euro burglary standard.

CEN/Eurotest - High quality

As part of the ongoing process to have common European standards, safes and strongroom doors test standards have been set. Strongroom door approvals comprise grade V through XIII. To comply with the CEN/European standard, ISO 9000 quality approval is a prerequisite and the Rosengrens factories comply with this requirement.

Attractive design

The RSD VII can be finished in a range of colours with a decorative aluminium facia to complement the vault area.
As an alternative the front of the door can be finished in stainless steel.

Lock alternatives

For grade VII doors two class C(3) approved high security locks are required. For RSD VII the following alternatives are available:
  • Two key locks
  • Two combination locks
  • Two electronic high security locks
  • A combination of above locks.
The key lock, Rosengrens RKL-10, can easily be reset to accept a new key bit if a key is lost or there is a change of staff. The electronic lock has double circuits for highest reliability and is very easy to operate. Other features are, e.g. several user codes, time lock, time delayed opening etc.
Solid frame - High security
The solid frame construction increases the security of the door and enables installation in wall thicknesses up to 550 mm.

The frame is prepared for Rosengrens grille gates, with both key and electronic locks:

RVG: Grille gate with attractive aluminium frame with sheets of engraved acrylic
          glass.

RGS: Grille gate with horizontal steel bars.

Options
  • Frame for 350-450 mm wall - basic door
  • Frame for 450-550 mm wall
  • Stainless steel front finish
  • Water protection
  • Emergency internal release handle (no label)
  • Door operated light switch
  • Alarm kit according to VdS requirements.


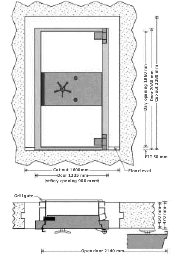
Rosengrens RSD Dimensions Diagram

RSD V Dimensions
Overall width with door closed 1600 mm
Overall width with door at 90° 2140 mm
Door width 1235 mm
Day opening (usable width) 900 mm
Overall height 2280 mm
Door height 2080 mm
Day opening (usable height) 1960 mm
Approximate total weight 1700 kgs


Measurements and weights are supplied by the manufacturer. By virtue of The Trade Descriptions Act 1968, all must necessarily be considered to be approximate.
Go back to New Strongroom Doors Go back to previous page, Rosengrens GSD VI and VII Strongroom Doors Straight to the Top Go to next page, Rosengrens RSD XI KB Strongroom Door Skip forward to New Archive Doors